Rif: IMMO-125502793
ASIAGO
VICENZA
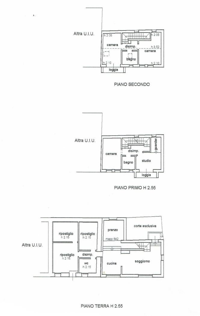
ZONA PENNAR: Prestigioso terratetto composto al piano terra da corte esclusiva, ingresso nel soggiorno con cucina a vista e sala da pranzo, bagno, taverna e ripostiglio. Al primo piano zona notte composta da due camere con bagno, guardaroba e loggia. Al secondo e ultimo piano mansardato due camere con bagno e loggia. Per informazioni contattare l'agenzia Nocentini Immobiliare al numero 0444.1930506 Mob. 392.5931316. www.nocentinimmobiliare.it - nocentinimmobiliare@gmail.com - Via Riello n. 55 Vicenza.
Consistenze
| Descrizione | Superficie | Sup. comm. |
|---|---|---|
| Principali | ||
| Immobile - piano terra | 121 Mq | 121 Mqc |
| Immobile - 1° piano | 48 Mq | 48 Mqc |
| Immobile - 2° piano | 48 Mq | 48 Mqc |
| Totale | 217 Mqc | |








