Rif: IMMO-125209203
VICENZA
VICENZA - zona Gogna
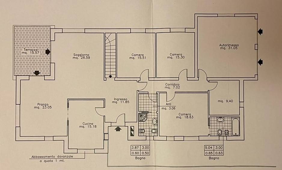
ZONA GOGNA: In lotto di 1.671 mq, prestigiosa e signorile villa singola immersa nel verde e nella tranquillità della zona Gogna, composta al piano terra da vano d'ingresso, ampio salone con accesso al terrazzo abitabile, cucina, bagno finestrato con doccia, due camere doppie, camera matrimoniale con bagno, camera singola, garage doppio. Al piano sottostrada secondo soggiorno con cucina a vista ed accesso all'ampio portico, due stanze, taverna, grande cantina, lavanderia, ripostiglio, ricovero attrezzi/serra, locale caldaia. Possibilità di frazionamento in due unità abitative con ingressi indipendenti. Per informazioni contattare l'agenzia Nocentini Immobiliare al numero 0444.1930506 Mob. 392.5931316. www.nocentinimmobiliare.it - nocentinimmobiliare@gmail.com - Via Riello n. 55 Vicenza.
Consistenze
| Descrizione | Superficie | Sup. comm. |
|---|---|---|
| Principali | ||
| Immobile - piano terra | 178 Mq | 178 Mqc |
| Immobile - seminterrato | 106 Mq | 106 Mqc |
| Terrazza - piano terra | 15 Mq | 8 Mqc |
| Altro - seminterrato | 50 Mq | 25 Mqc |
| Box/Garage - piano terra | 34 Mq | 23 Mqc |
| Giardino/Resede | 1.540 Mq | 77 Mqc |
| Cantina - seminterrato | 34 Mq | 23 Mqc |
| Altro - seminterrato | 23 Mq | 15 Mqc |
| Altro - seminterrato | 24 Mq | 16 Mqc |
| Altro - seminterrato | 8 Mq | 5 Mqc |
| Terrazza - piano terra | 20 Mq | 10 Mqc |
| Terrazza - piano terra | 9 Mq | 3 Mqc |
| Totale | 489 Mqc | |








