Rif: IMMO-115209259
THIENE
VICENZA
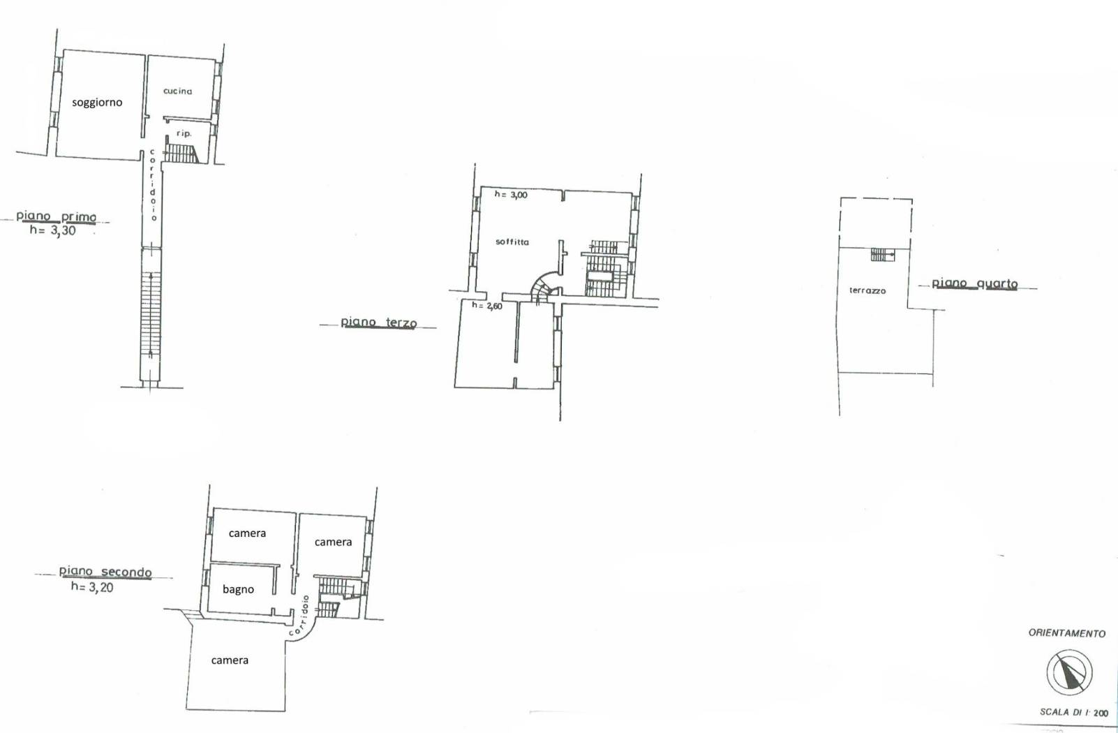
CENTRO STORICO: In signorile palazzo di sole tre unità, ampio appartamento disposto su quattro livelli composto al primo piano da corridoio d'ingresso, soggiorno, cucina abitabile con accesso al terrazzo; al secondo piano zona notte con tre camere matrimoniali ed ampio bagno (possibilità di ricavare un secondo bagno); al terzo piano mansardato soffitta con possibilità di recupero del sottotetto; al piano quarto ampia terrazza abitabile con vista panoramica. Possibilità di ricavare tre appartamenti. Per ulteriori informazioni contattare l'agenzia Nocentini Immobiliare al numero 0444.1930506 o 392.5931316.
Consistenze
| Descrizione | Superficie | Sup. comm. |
|---|---|---|
| Principali | ||
| Immobile - 1° piano | 83 Mq | 83 Mqc |
| Terrazza - 1° piano | 7 Mq | 2 Mqc |
| Immobile - 2° piano | 120 Mq | 120 Mqc |
| Soffitta - 3° piano | 130 Mq | 87 Mqc |
| Terrazza - 4° piano | 48 Mq | 16 Mqc |
| Parti comuni - piano terra | 13 Mq | 4 Mqc |
| Totale | 312 Mqc | |








